大阪市旭区赤川3丁目 戸建

1,190万円

大阪府大阪市旭区赤川3丁目5-14

おおさか東線「城北公園通」駅徒歩7分

地下鉄谷町線「千林大宮」駅徒歩23分

価格
1,190万円
間取り/建物面積
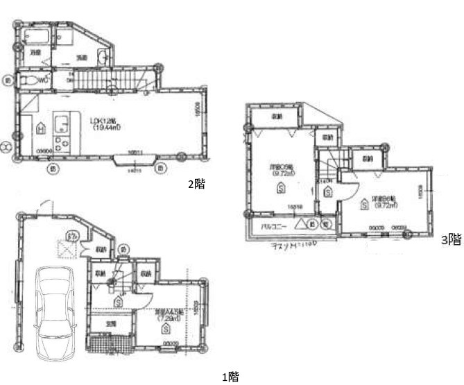
4DK/77.08㎡
所在地
大阪府大阪市旭区赤川3丁目5-14
築年
1972年12月(築53年)
駐車
-
交通

おおさか東線城北公園通」駅 徒歩7分

地下鉄谷町線千林大宮」駅 徒歩23分

大阪市旭区赤川3丁目 戸建の基本情報

物件名
大阪市旭区赤川3丁目 戸建
価格
1,190万円
建物面積
77.08㎡
土地面積
18.04坪(59.66㎡)
築年月
1972年12月(築53年)
総戸数
-
所在地
大阪府大阪市旭区赤川3丁目5-14
交通

おおさか東線城北公園通」駅 徒歩7分

地下鉄谷町線千林大宮」駅 徒歩23分

大阪市旭区赤川3丁目 戸建の詳細情報

設備条件
設備(その他)
    -
駐車場/月額
-/-
土地権利
所有権
国土法届出
不要
用途地域
第一種住居
取引態様
仲介
引渡し
相談

大阪市旭区赤川3丁目 戸建で募集中の物件

  1. 23.31坪 (77.08㎡)

    1,190万円(51.05万円/坪)

  2. 会員限定

    会員限定 (会員限定)

    会員限定(会員限定/坪)

  3. 会員限定

    会員限定 (会員限定)

    会員限定(会員限定/坪)

周辺施設

  • 大阪市立城北小学校の画像

    小学校

    大阪市立城北小学校

    251m(4分)

  • 大阪市立大宮中学校の画像

    中学校

    大阪市立大宮中学校

    1472m(19分)

近隣の物件

  1. 大阪市旭区清水3丁目

    4DK (68.25㎡)

    1,780万円

  2. 大阪市旭区清水5丁目

    3SLDK (161.75㎡)

    6,380万円

  3. 大阪市旭区清水3丁目

    4DK (84.39㎡)

    3,180万円

  4. 大阪市旭区森小路2丁目

    3DK (79.91㎡)

    1,950万円

大阪市旭区赤川3丁目 戸建

お気軽にお問い合わせください

LINEからお問い合わせ 無料お問い合わせ

いえプロ不動産

06-6185-1252

9:00~18:00

(休:火・水曜日)