守口市大日町4丁目 戸建

3,980万円

大阪府守口市大日町4丁目46-17

地下鉄谷町線「大日」駅徒歩14分

大阪モノレール本線「大日」駅徒歩14分

価格
3,980万円
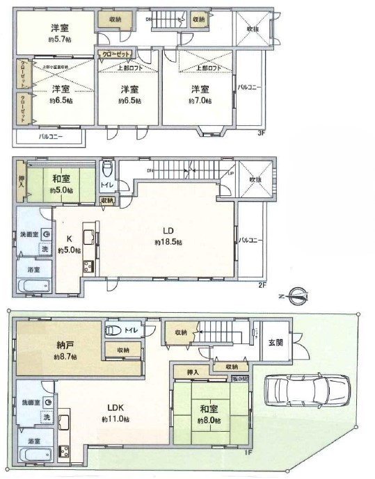
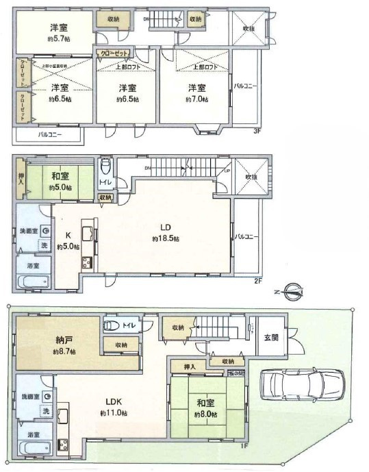
間取り/建物面積
6LDK/199.08㎡
所在地
大阪府守口市大日町4丁目46-17
築年
2004年6月(築21年)
駐車
交通

地下鉄谷町線大日」駅 徒歩14分

大阪モノレール本線大日」駅 徒歩14分

守口市大日町4丁目 戸建の基本情報

物件名
守口市大日町4丁目 戸建
価格
3,980万円
建物面積
199.08㎡
土地面積
36.39坪(120.32㎡)
築年月
2004年6月(築21年)
総戸数
-
所在地
大阪府守口市大日町4丁目46-17
交通

地下鉄谷町線大日」駅 徒歩14分

大阪モノレール本線大日」駅 徒歩14分

守口市大日町4丁目 戸建の詳細情報

設備条件
設備(その他)
    -
駐車場/月額
有/-
土地権利
所有権
国土法届出
不要
用途地域
第一種住居
取引態様
仲介
引渡し
相談

守口市大日町4丁目 戸建で募集中の物件

  1. 会員限定

    会員限定 (会員限定)

    会員限定(会員限定/坪)

  2. 会員限定

    会員限定 (会員限定)

    会員限定(会員限定/坪)

  3. 60.22坪 (199.08㎡)

    3,980万円(66.09万円/坪)

周辺施設

  • 守口市立庭窪中学校の画像

    中学校

    守口市立庭窪中学校

    767m(10分)

近隣の物件

  1. 守口市佐太中町7丁目

    3LDK (95.21㎡)

    2,360万円

  2. 守口市大久保町4丁目

    3LDK (108.56㎡)

    2,780万円

  3. 守口市金田町1丁目

    4LDK (108.24㎡)

    2,480万円

  4. 守口市高瀬町3丁目

    3LDK (84.91㎡)

    4,199万円

よく見られている物件

  1. 大阪市旭区新森7丁目

    4LDK (136.58㎡)

    6,980万円

  2. 大阪市城東区鴫野東3丁目

    3LDK (70.64㎡)

    4,780万円

  3. 守口市大久保町3丁目

    4LDK (100.84㎡)

    3,090万円

  4. 大阪市城東区鴫野西2丁目

    4LDK (121.64㎡)

    5,980万円

守口市大日町4丁目 戸建

お気軽にお問い合わせください

LINEからお問い合わせ 無料お問い合わせ

いえプロ不動産

06-6185-1252

9:00~18:00

(休:火・水曜日)